Hier im wunderschönen Zagorije Gebiet - bekannt für seine Thermal- und Heilbäder - entsteht das erste Tiny Haus Projekt ''Green Garden Village'' in Kroatien. Es ist von Österreich in nur 80 Minuten mit dem Auto erreichbar.
Auf über 10.000 m2 Fläche entsteht in traumhafter Natur- und Ruhelage das erste Tiny Haus Village in Zentral Kroatien. Hier handelt es sich um Bauland (sie erwerben hier ''echtes'' Eigentum) und somit ist es als Dauer-Wohnsitz geeignet. Die Parzellierung ist schon erfolgt.
Ideal für alle, die unabhängig und frei leben wollen, aber das Umfeld einer kleinen Gemeinschaft zu schätzen wissen.
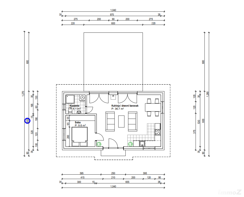
Der Bebauungsplan sieht eine Bebauung mit insgesamt 15 Bungalows mit Wohnflächen zwischen 50 m2 und 90 m2 Wohnfläche vor.
Ideal für alle, die endlich Mietfrei leben möchten. Alle Grundrisse der Bungalows sind auch für ein altergerechtes Wohnen geeignet. Sichern sie sich frühzeitig eines der tollen Grundstücke und erwerben Sie für sich auch ein Stück persönliche Freiheit und Unabhängigkeit für ihre Zukunft!
Durch die leichte Hanglage mit Blick ins Grüne, eignen sich die kleinen Bungalows auch sehr gut für eine touristische Nutzung, da es im Umkreis von nur 20 Minuten drei beliebte Thermalbäder gibt. Nach Zagreb sind es nur 35 Minuten und zur Adria nur 2 Stunden fahrt.
Die sehr ruhig und sonnig gelegenen Kaufgrundstücke sind zwischen 450 m2 und 620 m2 groß. Ideal für Singles, Paare, Familien und Pensionisten, die einen Ruheort in wunderbarer Natur suchen. Ein besonderes Highlight hier: eine Freizeit -und Rekreationsfläche ist für alle künftigen Eigentümer vorgesehen. (Optional)
Die Quadratmeter Preise für die Baugrundstücke liegen bei nur 38 €/m2 + einmaligem Erschließungsbeitrag von 4000 €. (Strom, Wasser, Wege usw.) pro Parzelle.
Sichern sie sich jetzt schon eins dieser schönen Grundstücke. Kontaktieren Sie uns für individuelle Besichtigungstermine.
| Standort: | 49214 Vizovlje, HRV |
| Lage: | Baugrundstücke umgeben von wunderbarer Natur. |
| Lärm: | absolute Ruhelage |
| Verkehr: | Öffentliche Verkehrsmittel: vorhanden 10 Min. mit Auto |
| Provision: | 3% zzgl 25% Ust (HR) |
| Grundstück: | VOLLERSCHLOSSEN |
| Preis pro m2: | € 38,00 |
| Grundstück: | 500 m2 |
| Garten: | 400 m2 |
