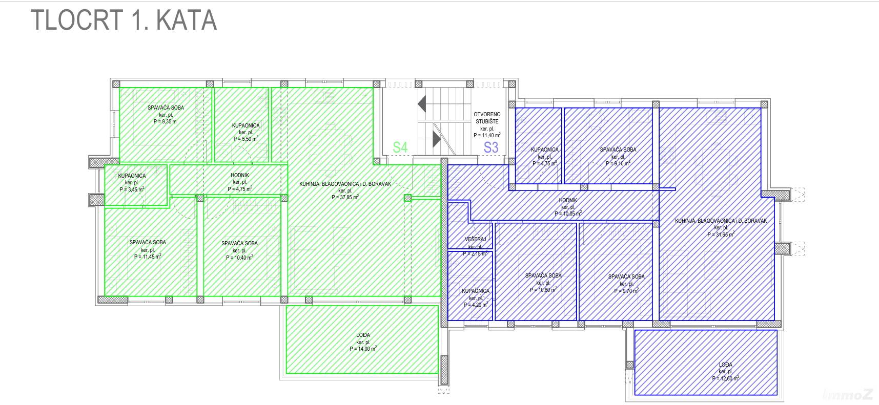
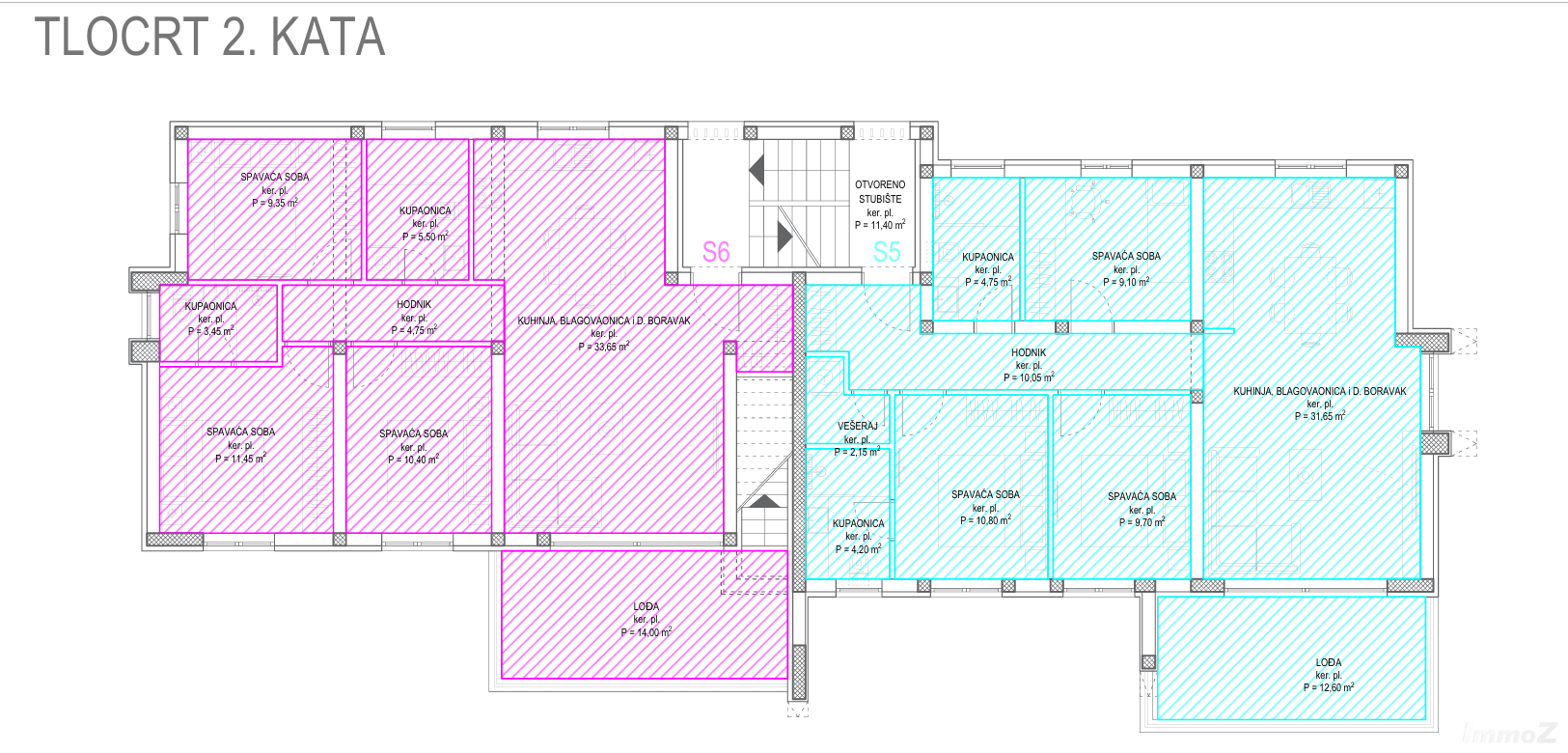
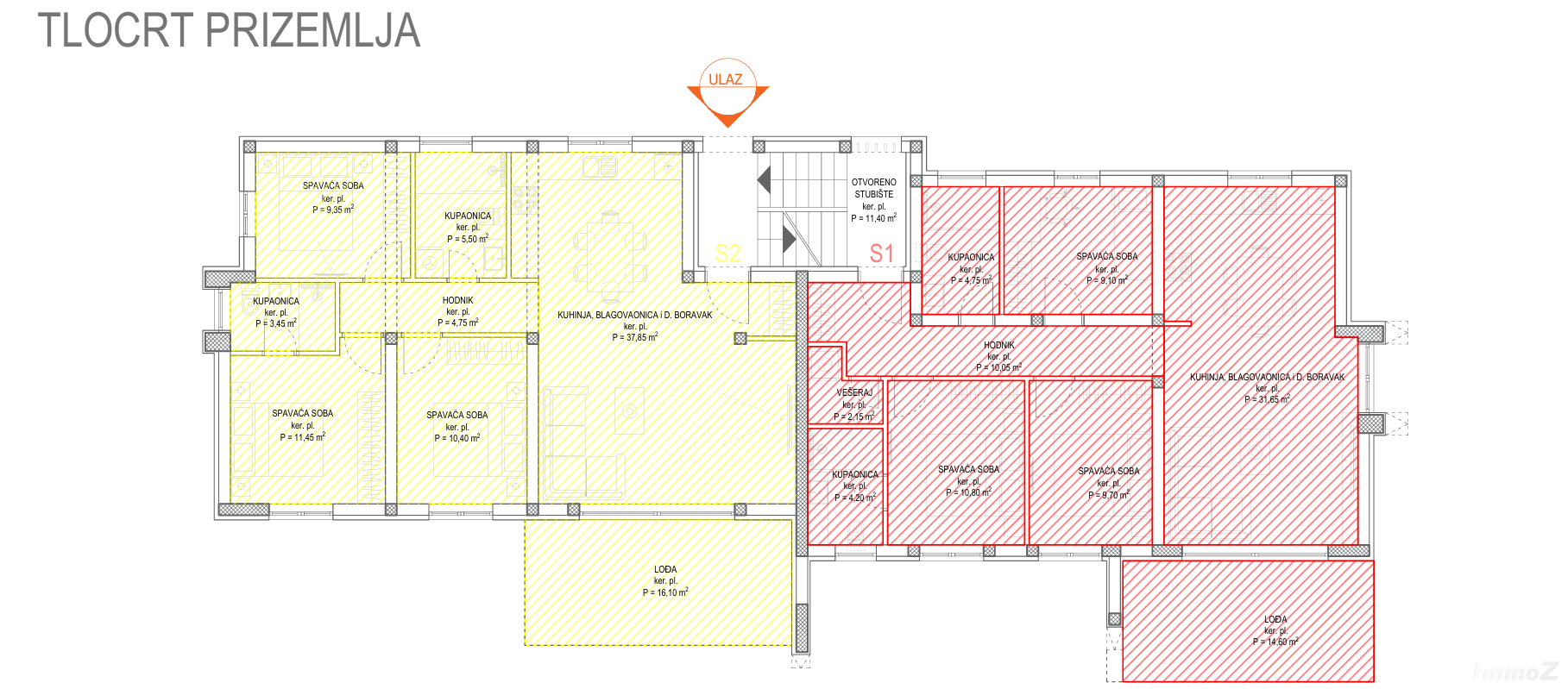
Zum Verkauf stehen hier insgesamt sechs Neubauwohnungen in bevorzugter Lage von Zadar im Stadteil Diklo. Die Wohnungsgrößen liegen zwischen 102 m2 und 130 m2. Die Wohnungen im 2 OG. verfügen zudem jeweils über einer über 100 m2 große Dachterrasse mit traumhaften Blick auf die Adria. Hier findet eine Outdoorküche, Lounge-Bereich oder Whirlpool platz.
Parkplätze für Bewohner und Gäste stehen vor dem Haus zur Verfügung.
Im schönen Stadteil Zadar Diklo, in einer der begehrtesten Lagen, befindet sich diese hochwertigen Neubauwohnungen nur 150 Meter vom Meer entfernt. Alle mit Top-Annehmlichkeiten, die maximalen Komfort und einen exklusiven Lebensstil gewährleisten.
Die Wohnung ist Teil eines modernen Neubaus, mit insgesamt nur sechs Wohnungen, die mit Fokus auf anspruchsvolles Design, hochwertige Materialien und tadellose Funktionalität gestaltet wurden.
Über Zadar: Zadar ist eine bemerkenswerte Stadt mit einer vielfältigen Geschichte, hier wurde die erste Meeresorgel der Welt gebaut. Er erzeugt Klänge nur mit der Kraft des Windes und der Meereswellen;
Zadar hat eine sehr lange Geschichte von mehr als 3.000 Jahren, und vieles davon ist immer noch in der ganzen Stadt zu sehen. Ein Spaziergang durch die Stadt ist ein Spaziergang durch die Zeit, von den Römern über das Mittelalter bis hin zur jüngeren und turbulenten Geschichte des 20. Jahrhunderts. Einfach ein toller Ort zum Leben.
Hier haben Sie die Möglichkeit sich jetzt Ihren Traum von einer Top Immobilie an der Adria zu erfüllen. Reservieren sie sich frühzeitig ihre Traumwohnung.
| Standort: | 2300 Zadar, HRV |
| Verkehr: | Öffentliche Verkehrsmittel: vorhanden 5 Min. zu Fuß |
| Provision: | 3% zzgl 25% Ust (HR) |
| Baujahr: | 2025 |
| Grundstück: | VOLLERSCHLOSSEN |
| Keller: | 25 m2 |
| Wohnfläche: | 130 m2 |
| Lager: | 25 m2 |
| Badezimmer: | 2 |
| Loggia: | 1 |
| Balkone: | 1 |
| Stellplätze: | 2 |
| Böden: | Parkett |
| Küche: | offen |
